Estate Awards

Nominace projekt: Nástavba v Lazebnické 3

Kategorie

Rekonstrukce roku

Základní informace

Název projektu: Nástavba v Lazebnické 3
Adresa projektu: Lazebnická 3, Opava – město
Web projektu: www.lazebnicka3.cz
Developer / Investor: Ing. Michal Popov
Architekt: Ing. Arch. David Wittassek a Ing. Arch Tomáš Jung
Architekt interiérů: Ing. Arch. Lenka Demetrovičová
Projektant: A2 Timber
Generální dodavatel: 
Realitní kancelář (není povinné): 

Popis projektu

První dřevěná nástavba z CLT panelů v historickém centru města Opavy. Prostory byly vybudována na střeše domu z roku 1929, který byl pravděpodobně již ve 30. letech minulého století koncipován tak, aby jednou mohlo dojít k rozšíření. Vlivem historických událostí, kdy na židovskou rodinu majitelů tvrdě dopadly nacistické perzekuce a následně i nepřátelství komunistického režimu, byla nástavba realizována až se stoletým zpožděním. Postavit ji nechal vnuk původního majitele.
Hlavním konstrukčním prvkem jsou dřevěné panely Novatop pocházející z nedaleké výroby. Volba tohoto systému umožnila vysokou míru prefabrikace a zejména použití pohledového dřeva v interiéru. Udržitelnost se pak dále linula celým projektem a byla jedním z rozhodujících kritérií při volbě materiálů i technologií.
Prostory slouží jako komerční, konkrétně administrativní, a doplňují tak multifunkční využití domu, kde kromě 8 bytů sídlí i květinářství, interiérové studio a u budovy aktuálně vzniká veřejně přístupný park.

Technické informace

Druh stavby: Novostavba s částečným využitím původní konstrukce
Zahájení stavby: 8/2023
Ukončení stavby: 3/2024
Kolaudace: 4/2024
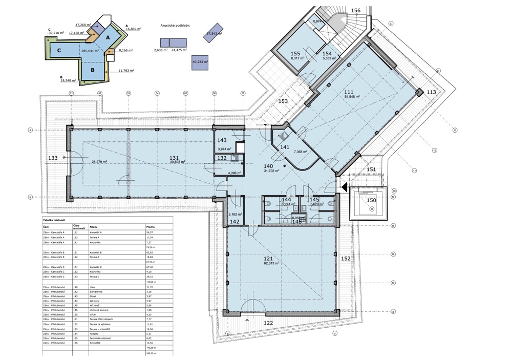
Zastavěná plocha: 390,52 
Celková prodejní plocha nemovitosti: 263 m²
Celková plocha balkonů, teras, zahrádek: 111,5 m² teras v rámci nástavby + budování parčíku vedle domu o ploše 279,5 m²
Parkovací stání v objektu: 12
Parkovací stání mimo objekt: Placené městské parkoviště před domem – více než 50 míst
Garážové stání: 12
Třída PENB: B

Enviromentální a jiné specifikace (LEED, BREEAM, DGNB, BSTool, WELL): O environmentální certifikace nebylo u projektu doposud žádáno

Použité environmentální technologie v projektu, které snižují dopad budovy/projektu na životní prostředí: Sběr dešťové vody a její další využití pro splachování a zalévání zeleně v přilehlém veřejném prostoru.

Využití obnovitelných zdrojů v projektu (jako % podíl obnovitelné energie z celkové dodané): Prozatím není v provozu, ale v objektu nástavby je kompletní příprava pro solární energii – prozatím využíváno tepelné čerpadlo.

Popis technických systémů z hlediska jejich efektivního provozu (vytápění, chlazení, větrání, vlhčení, osvětlení): Vše řízeno systémem LOXONE dle aktuálního nastavení, které je konzultováno s nájemníky. O energii pro nástavbu se stará tepelné čerpadlo, v budoucnu se počítá se zapojením solárních panelů.

Jaké obnovitelné zdroje se využívají?: Z obnovitelných zdrojů jde o využití dešťové vody, která se sbírá ze střechy celé nástavby (včetně teras), je shromažďována v garážových prostorech v suterénu domu a odtam pak buď čerpána do nástavby na splachování toalet nebo využívána v objektu pro prostory květinářství a jako závlaha pro nově budovaný parčík přístupný veřejnosti. Vnitřní klima je hlídáno prostřednictvím systému LOXONE – množství čidel ve všech prostorách sleduje přítomnost lidí, množství světla a kvalitu vzduchu. Prostory nemají klimatizaci, teplota je regulována vnějšími žaluziemi a vzduchotechnikou, dodatečné topení a chlazení zajišťuje vodní podlahové topení/chlazení a fancoil jednotky. Všechny kanceláře mají vlastní přístup na terasu a zároveň i možnost větrání okny.

Slabá místa v rámci stavební akustiky dřevostavby byla doplněna řešením se sádrovláknitými deskami Fermacell. Prostorová akustika byla navržena a realizována ve spolupráci s profesionály ze společnosti AVETON.

Uveďte počet plánovaných nájemců, zasmluvněné nájemce, velikost pronajaté plochy a dominantní odvětví/segment nájemců: Nástavba je rozdělena na tři kanceláře, dvě z nich si aktuálně pronajímá společnost Novatop zaměřená na udržitelné dřevostavby z CLT panelů.

Víceúčelový objekt (účel v % z celkové plochy: kanceláře / maloobchod / volný čas / veřejné plochy):  Dvě patra domu zaujímá maloobchod, jedno patro byty a jedno patro kanceláře – přibližné rozdělení tedy 50 % maloobchod, 25 % bydlení a 25 % kanceláře.

Technologické inovace

Technologické inovace (vybavení a standard pronajímaných ploch): Systém LOXONE s pokročilým nastavením, pohledové dřevo v interiérech, vysoký standard vybavení dokončený ve spolupráci s nájemníky – ze strany majitelů objektu jsou samozřejmostí například akustické panely s masivního dřeva.

Financování

Název financující banky: Financováno z prostředků investora
Financováno pomocí Green bonds: Ne
Cena za m²: 42 000 Kč (berou se v potaz pronajímané prostory, terasy, společné prostory i technické místnosti)
Celková investice do projektu (není povinné): Neuvedeno

Doplňující informace

Projekt postaven na brownfieldu:  Ne
Průměrná cena k datu přihlášení projektu za m² (prodej a pronájem):
450 Kč (pro zjednodušení sečtena plocha kanceláří i teras, ale nezapočítány společné prostory)