Estate Awards

Nominace projekt: Rezidence u Kazínské skály – 2. etapa

Kategorie

Rezidenční projekt – kategorie Prémiové bydlení

Základní informace

Název projektu: Rezidence u Kazínské skály – 2. etapa
Adresa projektu: Ke Hřišti 2408, 252 28 Černošice
Web projektu: www.ibs-rokal.cz/cs/rezidence-u-kazinske-skaly-ii-etapa/
Developer / Investor: IBS-ROKAL, s.r.o.
Architekt: ŠAFER HÁJEK ARCHITEKTI
Architekt interiérů: ŠAFER HÁJEK ARCHITEKTI
Projektant: AED project, a.s.
Generální dodavatel: IBS-ROKAL, s.r.o.
Realitní kancelář (není povinné): IBS-ROKAL, s.r.o.

Popis projektu

Rezidenční projekt „U Kazínské Skály“ vznikl přestavbou starého skladového areálu v centru města Černošice na jihozápadním předměstí Prahy. Cílem přestavby bylo přinést do zanedbaného místa v centru malého města kvalitní architekturu a nové veřejné prostory a vytvořit nové pěší trasy skrz areál směrem k nedaleké přírodní lokalitě okolo řeky Berounky.


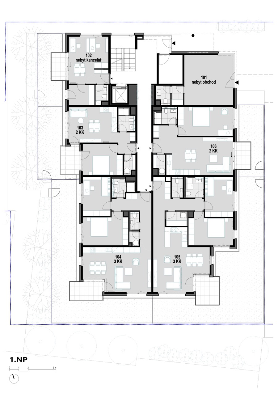
Projekt obsahuje 14 bytů a 2 nebytové prostory (Barber café a cvičení pilates). Dispozice jednotlivých bytů jsou navrženy tak, aby se co nejvíce uplatnily krásné výhledy na okolní přírodní scenérie.


Hmota domu je rozdělena do tří, mírně posunutých částí. Střední část má pultovou střechu, menší části mají střechu plochou. Toto objemové řešení je podpořeno materiálovým návrhem fasád – kombinací cihelného obkladu a probarvené omítky. Dochází tak k pocitovému zmenšení objektu a jeho lepšímu splynutí s charakterem okolní zástavby. Vstup do domů je zdůrazněný velkoformátovým sklem v kombinaci ušlechtilých stěrek a velkoformátového podsvíceného zrcadla.


Viladům stojí na garážích, umístěných pod terénem s vjezdem z přilehlé ulice. Návrh byl vytvořen tak, že garáže jsou v podstatě neviditelné a zeleň včetně stromů, keřů a trávníků je zcela zakrývá.


Velký důraz byl kladen na řešení poloveřejného společného prostoru a okolí. Kombinace štípané žulové dlažby a velkoformátových betonových desek při vstupu vytváří dojem vstupní klaviatury.


Pečlivě jsou řešeny i společné prostory a vybavení bytů. Koupelny jsou obloženy velkoformátovým obkladem 2×3 m v kombinaci s limestonovou dlažbou, designovými umyvadly a dalším nadstandartním vybavením.

Technické informace

Druh stavby: Novostavba na zelené louce/brownfieldu
Zahájení stavby: 01/2024
Ukončení stavby: 08/2025
Kolaudace: 08/2025
Zastavěná plocha: 623 
Celková prodejní plocha nemovitosti: 1 800 m²
Celková plocha balkonů, teras, zahrádek: 410 
Parkovací stání v objektu: 22
Parkovací stání mimo objekt: 3
Garážové stání: 19
Třída PENB: B

Enviromentální a jiné specifikace (LEED, BREEAM, DGNB, BSTool, WELL): 

Použité environmentální technologie v projektu, které snižují dopad budovy/projektu na životní prostředí: Za použití FVE na střeše objektu pro spotřebu společných prostor. Retenční nádrž na závlahu veřejné zeleně.

Využití obnovitelných zdrojů v projektu (jako % podíl obnovitelné energie z celkové dodané): 2,7 % – Za použití FVE na střeše objektu pro společnou spotřebu elektrické energie.

Popis technických systémů z hlediska jejich efektivního provozu (vytápění, chlazení, větrání, vlhčení, osvětlení): 

Vytápění: Potřeba tepla pro vytápění a ohřev TUV je pokrývána z kaskády dvou plynových kondenzačních závěsných kotlů, každý o výkonu 45 kW. Vytápění bytů v obytných prostorech je pomocí podlahového vytápění. V místnostech, kde podlahové vytápění nepokryje tepelnou ztrátu jsou navíc osazena kombinovaná otopná tělesa napojena na nízký teplotní spád 40/30 °C a opatřena elektrickou topnou patronou. V koupelnách je použito podlahového vytápění a elektrické nástěnné těleso. Příprava 

TUV: Ohřev TUV zajistí jeden zásobníkový nepřímotopný ohřívač TUV o objemu 750 l. Zdroj tepla je shodný s vytápěním. Větrání: Větrání je přirozeně okny. Suterén je větrán nuceně vzduchotechnikou. Systém provozního větrání garáží je podtlakový s nuceným odvodem vzduchu. Provozní větrání je zajištěno pomocí potrubního ventilátoru s plynulou regulací průtoku vzduchu pomocí frekvenčního měniče. 

Chlazení: Byty ve 3.NP a nebytové prostory v 1NP jsou chlazeny pomocí split systému a multi-split systémů s napojením vnitřních jednotek.

Jaké obnovitelné zdroje se využívají?: Za použití FVE na střeše objektu pro spotřebu společných prostor. Retenční nádrž na závlahu veřejné zeleně.

Uveďte počet plánovaných nájemců, zasmluvněné nájemce, velikost pronajaté plochy a dominantní odvětví/segment nájemců: Všechny prostory určeny k prodeji.

Víceúčelový objekt (účel v % z celkové plochy: kanceláře / maloobchod / volný čas / veřejné plochy): 

Maloobchod: 6

Volný čas: 0

Bydlení: 94

Veřejné plochy: 360

Technologické inovace

Technologické inovace (vybavení a standard pronajímaných ploch): Pronajímané plochy v objektu nejsou. Nebytové prostory si dokončuje zákazník sám.

Financování

Název financující banky: Z vlastních zdrojů
Financováno pomocí Green bonds: Ne
Cena za m²: 75 000 Kč
Celková investice do projektu (není povinné): 130 000 000 Kč

Doplňující informace

Projekt postaven na brownfieldu:  Ano
Průměrná cena k datu přihlášení projektu za m² (prodej a pronájem): 
145 000 Kč