Estate Awards

Nominace projekt: VITKOVIA CENTRUM

Foto 1-10: © autor Jiří Bednář
ostatni foto: © ARCHIKÓD

Kategorie

Rezidenční projekt – kategorie Prémiové bydlení

Základní informace

Název projektu: VITKOVIA CENTRUM
Adresa projektu: Pod Vítkovem 2935/2, 130 00 Praha 3
Web projektu: www.vitkovia.cz
Developer / Investor: ARCHIKÓD a.s. / VITKOVIA CENTRUM s.r.o.
Architekt: VAVRICA ARCHITEKTI s.r.o.
Architekt interiérů: VAVRICA ARCHITEKTI s.r.o.
Projektant: VAVRICA ARCHITEKTI s.r.o.
Generální dodavatel: STRABAG a.s.
Realitní kancelář (není povinné):

Popis projektu

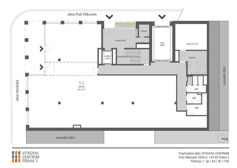
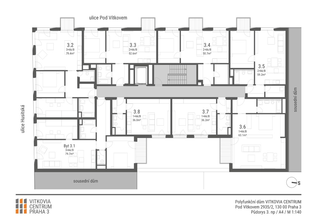
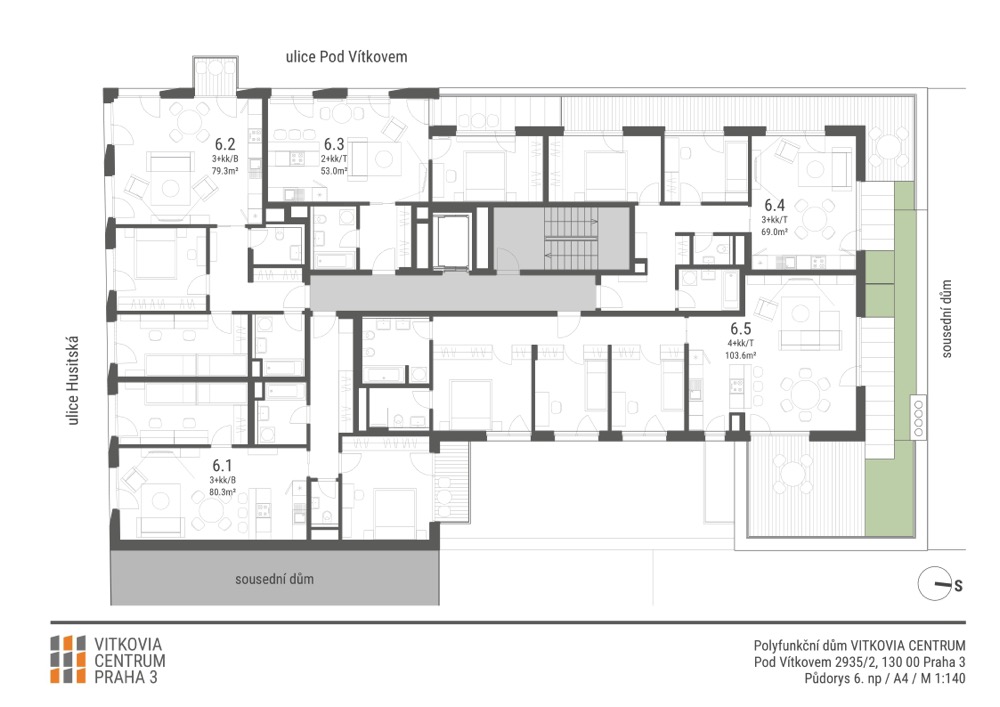
Projekt VITKOVIA CENTRUM je situován v Praze 3, v srdci starého Žižkova v těsné blízkosti parku Vítkov. Je zasazen do původní historické zástavby, kterou obohacuje o moderní prvky, ale současně vytváří harmonický celek. Objekt má 7 nadzemních podlaží včetně podkroví. Je rozčleněn barevností fasád na 2 části, které respektují urbanistické měřítko a odkazují na původní členění parcel. Na přízemí se nachází občanská vybavenost, které dominují prosklené výklady. V nároží se nachází vstup, který je akcentovaný podloubím. Hlavní vstup do objektu jako i vjezd se nachází v klidné ulici Pod Vítkovem, která tvoří nástup do přilehlého parku Vítkov. Fasáda je pravidelná, členěná horizontálními francouzskými okny a plastickým vykrojením. Podkroví doplněno vikýři. V druhém podlaží jsou situovány kancelářské prostory, od třetího podlaží byty a ateliéry různých velikostí, od 1+kk do 5+kk. V nejvyšším patře jsou situovány prostorné penthousy s výhledy do širokého okolí. Většina jednotek, včetně kancelářských, má balkóny nebo terasy. Parkování je zabezpečeno v podzemních garážích s kapacitou 36 parkovacích míst.

Technické informace

Druh stavby: Novostavba na zelené louce/brownfieldu
Zahájení stavby: 2/2022
Ukončení stavby: 2/2025
Kolaudace: 3/2025
Zastavěná plocha: 646 m² 
Celková prodejní plocha nemovitosti: 3 792 m² 
Celková plocha balkonů, teras, zahrádek: 261 m² 
Parkovací stání v objektu: 36
Parkovací stání mimo objekt: 0
Garážové stání: 36
Třída PENB: B

Enviromentální a jiné specifikace (LEED, BREEAM, DGNB, BSTool, WELL):

Použité environmentální technologie v projektu, které snižují dopad budovy/projektu na životní prostředí: Retence dešťové vody, větrání s rekuperací, zelené střechy, venkovní stínění.

Využití obnovitelných zdrojů v projektu (jako % podíl obnovitelné energie z celkové dodané): 

Popis technických systémů z hlediska jejich efektivního provozu (vytápění, chlazení, větrání, vlhčení, osvětlení): Vytápění objektu a přípravu TÚV zabezpečuje plynová kotelna v přízemí objektu. Chlazení, ohřev, větrání a kompletní úprava vzduchu je zabezpečena pro komerční prostory v 1.np a pro kanceláře v 2.np. Byty 3+kk a větší mají k dispozici chladící klimatizační jednotky, venkovní jednotky jsou umístněny na technické terase v 7.np. Větrání bytů do ulice Husitská je řešeno rekuperačními jednotkami, byty do ulice Pod Vítkovem mají ve fasádě zabudované akustické štěrbiny. Od 2.np jsou všechna okna otvíravá. Osvětlení prostor je primárně řešeno přirozeně. Zajímavé osvětlovací prvky ve formě zapuštěných LED pásků jsou použity ve vstupní hale, při vstupu, v podloubí a jako výstražné pásy na schodišti. Schodiště je v nejvyšším patře osvětleno světlíkem. Všechny okna jižní a západní fasády mají stínící rolety, které výrazně snižují tepelné zisky objektu v letních obdobích.

Jaké obnovitelné zdroje se využívají?: Zelené střechy, venkovní stínění, akustické štěrbiny, větrání s rekuperací.

Uveďte počet plánovaných nájemců, zasmluvněné nájemce, velikost pronajaté plochy a dominantní odvětví/segment nájemců: 1 obchodní prostor / 1 kavárna / 2x kancelář/showroom / 34 (nájemních) bytů/ateliérů

Víceúčelový objekt (účel v % z celkové plochy: kanceláře / maloobchod / volný čas / veřejné plochy): 10% obchodní prostory / 6% kanceláře / 59% byty a ateliéry / 25% garáže a sklepy

Technologické inovace

Technologické inovace (vybavení a standard pronajímaných ploch): Venkovní stínění, větrání s rekuperací, zatlumené štěrbiny.

Financování

Název financující banky: Privatbanka a.s.
Financováno pomocí Green bonds: Ne
Cena za m²: 180 000 Kč
Celková investice do projektu (není povinné): 

Doplňující informace

Projekt postaven na brownfieldu: Ne
Průměrná cena k datu přihlášení projektu za m² (prodej a pronájem): 
180.000,- Kč / 500,- Kč